• Přihlásit
  • Zaregistrovat
Zapomněli jste heslo?

Přihlásit se přes Facebook Přihlásit se přes Google

Tento web je chráněn službou reCAPTCHA a platí zásady ochrany osobních údajů a smluvní podmínky společnosti Google.

  • Reset hesla

Zadejte Váš přihlašovací e-mail. Na tuto adresu Vám zašleme zprávu se zabezpečeným odkazem, přes který si nastavíte nové přihlašovací heslo.

Na Vaši emailovou adresu byl zaslán email s instrukcemi pro reset hesla.

Logo sidlorealit.cz
  • Hledat nemovitost
  • Hlídací pes
  • Vložit nemovitost
  • Přihlásit / Zaregistrovat
  • Hledat nemovitost
  • Vložit nemovitost
  • Hlídací pes
Logo sidlorealit.cz
  1. Domů
  2. Pronájem
  3. Byty
  4. okres Praha 5
  5. Praha
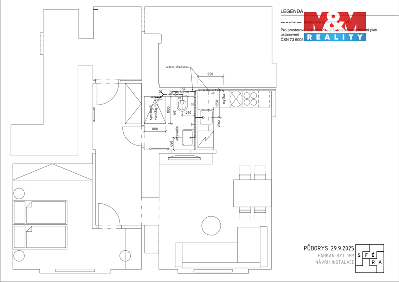
  6. Pronájem bytu 2kk, 55 m²

Pronájem bytu 2kk, 55 m²

Praha, 15000, Na Farkáně III

24 000 Kč / měs 55 m²
24 000 Kč / měs 55 m²
Obrázek č. 1
  • Fotky
  • Mapa
  • Street view
  • Přidat do seznamu oblíbených
Jakub Švarc

Jakub Švarc

  • Zobrazit telefon +420 296 399 006
Další nabídky
  • Vše
  • Popis
  • Vlastnosti
  • Adresa

Popis

Poslední aktualizace: 16.4.2026 11:07

V klidné a zelené části Prahy 5 – Radlic, v ulici Na Farkáně, nabízíme k pronájmu krásný byt 2+kk o ploše 56 m², který prošel kompletní rekonstrukcí. Byt se nachází v cihlovém domě a nabízí příjemnou kombinaci moderního bydlení a komorní atmosféry menšího domu. Dispozice je velmi praktická a působí vzdušně, takže poskytuje dostatek prostoru jak pro jednotlivce, tak pro pár. Velkou předností bytu je také nádherný otevřený výhled do okolí, který dodává bydlení příjemnou atmosféru a pocit klidu. Lokalita patří mezi velmi vyhledávané především díky skvělé dostupnosti do centra – stanice metra Radlická je vzdálena přibližně 5 minut chůze. V okolí se nachází veškerá občanská vybavenost, zeleň i možnosti pro volný čas. K bytu náleží sklep a k dispozici je také společná sušárna v domě. Byt je ideální pro ty, kteří hledají klidné a zároveň skvěle dostupné bydlení. Poplatky si nájemce přepisuje na sebe.

Cena 24 000 Kč / měs
Užitná plocha 55 m²
Exkluzivní smlouva Ano

Vlastnosti

Kategorie 2+kk
Vlastnictví Osobní
Stav Velmi dobrý
Stavba Cihlová
Vybavenost Nevybaveno
Umístění Klidná část obce
Okolní zástavba Obytná
Doprava Autobus
Typ odpadu Veřejná kanalizace
Zdroj vody Dálkový vodovod
Elektřina 400V
Rok výstavby 1941
Rekonstrukce 2026
Podlaží 1 z 4
Podzemní podlaží 1
  • Výtah
  • Bezbariérový

Adresa

Zobrazit na mapě
  • Město:
    Praha
  • Ulice:
    Na Farkáně III 9
  • PSČ:
    15000
  • Okres:
    Praha 5
  • Země:
    Česká republika

Kontakt

Další inzeráty makléře
Jakub Švarc

Jakub Švarc

M&M reality holding a.s.

Odesláním formuláře souhlasíte, aby Vás zadavatel nemovitosti mohl písemně nebo telefonicky kontaktovat.

Tento web je chráněn službou reCAPTCHA a platí zásady ochrany osobních údajů a smluvní podmínky společnosti Google.

Výsledek vyhledávání neodpovídá Vašim představám?

Hlídací pes
Vytvořite si hlídacího psa

Podívejte se i na další nabídky v kategorii pronájem byty!

Hledat další inzeráty
×
1 / 12
2 / 12
3 / 12
4 / 12
5 / 12
6 / 12
7 / 12
8 / 12
9 / 12
10 / 12
11 / 12
12 / 12

Sídlo Realit, s.r.o.

  • Brno, Nové sady 988/2
  • info@sidlorealit.cz

O nás

  • Kdo jsme
  • Nastavení cookies

Nemovitosti

  • Byty
  • Domy
  • Pozemky
  • Komerční
  • Ostatní

Důležité informace

  • Hlídací pes
  • Export/import inzerátů
  • Jak na to?
  • Ceník
  • Ochrana osobních údajů
  • Všeobecné obchodní podmínky
  • Napište nám

sidlorealit.cz - Všechna práva vyhrazena

Cookies sidlorealit.cz Na tomto webu používáme cookies

Pro co nejpohodlnější používání webu potřebujeme Váš souhlas se zpracováním souborů cookies. Souhlas udělíte kliknutím na tlačítko "Povolit vše".
Zde si můžete přečíst podrobné informace.

Cookies sidlorealit.cz Cookies - Nastavení

Zde máte možnost přizpůsobit soubory cookie podle kategorii, v souladu s vlastními preferencemi

Technické cookies

Tyto cookies jsou potřeba kvůli správnému fungování webu, bezpečnosti, správnému zobrazování na počítači nebo na mobilu, fungujícímu vyplňování i odesílání formulářů a podobně. Technické cookies nelze vypnout, protože by web dál nefungoval správně.

Analytické cookies

Analytické a výkonnostní cookies nám umožňují měření výkonu našeho webu a našich reklamních kampaní. Jejich pomocí určujeme počet návštěv a zdroje návštěv našich internetových stránek. Data získaná pomocí těchto cookies zpracováváme souhrnně, bez použití identifikátorů, které ukazují na konkrétní uživatele našeho webu. Čím víc lidí má statistické cookies zapnuté, tím lépe můžeme naše stránky optimalizovat, aby více odpovídaly tomu, co lidé na webu dělají.

Personalizované cookies

Díky použití personalizovaných souborů cookie se vás dokola nebudeme muset ptát na ty stejné informace nebo vám budeme moc nabízet produkty podle vašich zájmů nebo upravovat obsah webu přímo vám na míru.

Reklamní cookies

Reklamní cookies používáme my nebo naši partneři, abychom vám mohli připomenout nabídky, které jste si prohlíželi na našich stránkách i jinde na internetu: na Facebooku, na Googlu nebo třeba na Seznamu. Díky tomuto souhlasu neuvidíte více reklam, ale uvidíte hlavně reklamy, které odpovídají vašemu hledání. Souhlas s těmito cookies lze kdykoliv odvolat.

Potřebujeme Váš souhlas se zpracováním souborů cookies, abychom Vám mohli zobrazovat informace v souladu s Vašimi zájmy.